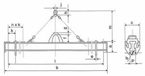
Trawersa o przestawnych punktach podwieszenia, które można zakończyć hakami lub szaklami do zaczepiania zawiesi cięgnowych linowych, łańcuchowych lub pasowych.
![]() |
![]() |
|
||||||||||||||||||||||||||||||||||||||||||||||||||||||||||||||||||||||||||||||||||||||||||||||||||||||||||||||||||||||||||||||||||||||||||||||||||||||||||||||||||||||||||||||||
TRAWERSA SPEŁNIA WYMAGANIA NORMY PN-84/M-06521 W ZAKRESIE PROJEKTOWANIA ORAZ NORMY PN-89/M84702 OGÓLNE BADANIA
A TAKŻE PN- EN - 13155 I DYREKTYWY MASZYNOWEJ 2006/42/WE.
Zdjęcia:
![]() |
| Trawersa uniwersalna typ TU-H DOR-3t. L1-6m, L2-2m. Na belce głównej są zamocowane przestawne punkty wraz z belkami poprzecznymi. Wielkość DOR jak i L1, L2 dobrane do potrzeb zamawiającego |
![]() |
|
Trawersa uniwersalna typ TU-H DOR-12t. L1-6m, L2-2m. |
|
Przedstawione dwa górne zdjęcia to trawersa uniwersalna TYP TU-H DOR - 4500kg L1-3000 , L2-1500mm podwieszana do suwnicy na zawiesiu łańcuchowym. Trawersa wyposażona w 6 punktów przestawnych k-200mm. |
|
Trawersa uniwersalna TYP TU - H DOR 6000kg L1-6000 L2-1500mm. Trzy belki poprzeczne wyposażone w zaczepy obrotowe do belki głównej oraz w rolki do zawiesi linowych jednocięgnowych. Trawersa wykonana wg. potrzeb zamawiającego. |
|
Trawersa uniwersalna TYP TU-H DOR - 10000kg L1-1355 , L2-1380. Trawersa wyposażona w zaczep przestawny do suwnicy z przesuniętym środkiem ciężkości. Wykonana zgodnie z potrzebami zamawiającego. |
|
Trawersa TYP TU DOR - 1500kg L-1300mm wyposażona w zawiesia łańcuchowe dwucięgnowe z hakami kontenerowymi. Trawersa przystosowana do obsługi bateri w wózkach widłowych. |
|
Trawersa uniwersalna TYP TU-H DOR - 3000kg L1-2700 , L2-1000mm. Belki poprzeczne wyposażone w zaczepy obrotowe do belki głównej oraz rolki do zawiesi linowych jednicięgnowych. Trawersa wykonana wg. potrzeb zamawiającego. |



